6A-2-2 Lilliendal & Marienhoj LNSSt Thomas, USVI
Offered at$520,000
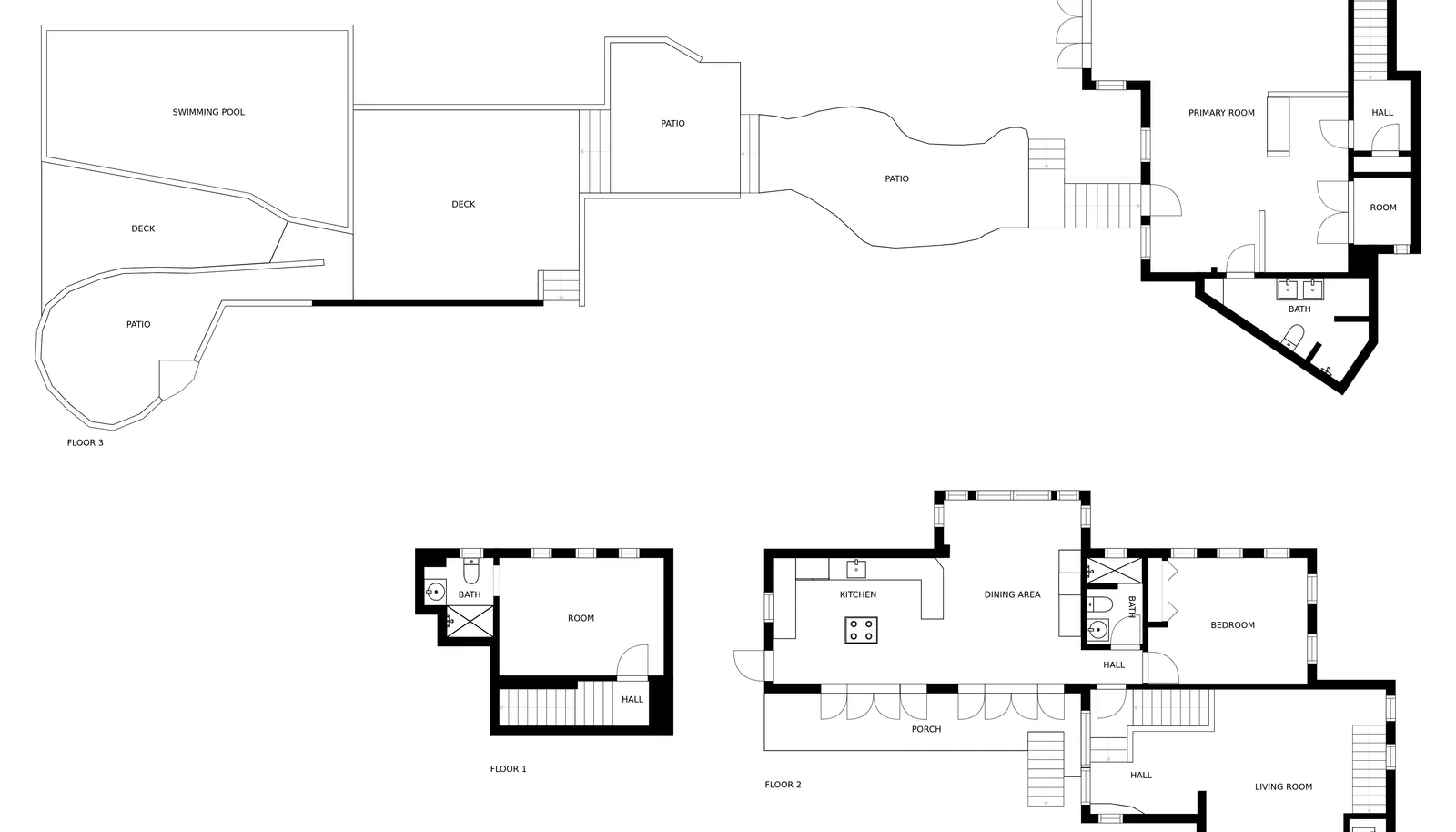
3 Beds
3 Baths
2,000 SqFt
Sweeping views of downtown from this three bedroom home with a pool! The outdoor space in this home is absolutely divine. Lots of character, such as the stonework driveway and the stunning garden area. Needs some finishing touches, but lots of potential to be the perfect home. Read More
Gallery

































Prev
Next